EIN HAUS FÜR ALLE FÄLLE! Mehrgenerationen, Wohnen und Arbeiten oder für die große Familie

Objektinformationen

Etagenanzahl:
2
Wohnfläche ca.:
240,00 m²
Nutzfläche:
150,00 m²
Grundstück:
1.805,00 m²
Zimmer:
7,0
Badezimmer:
4
Separates Badezimmer:
1
Stellplätze:
5

Verwaltungsdaten

Externe Nummer
8255-CM

Ausstattung

Zentralheizung
Gasbefeuerung
Keller
Satteldach
Massivbau
Gäste WC
Entfernung zum Kindergarten
0.8 km
Entfernung zur Grundschule
0.9 km
Entfernung zur Realschule
6.3 km
Entfernung zum Gymnasium
14 km
Entfernung zur Autobahn
15 km
Entfernung zum Zentrum
1.3 km

Zustand

Baujahr:
1900
Zustand:
gepflegt
Verkaufsstatus:
offen

Energiepass

Energieausweis Energieausweis
Energiepass Art:
Bedarf
gültig bis:
2036-03-30
Endenergiebedarf:
417.90 kWh/(m²a)
Primärenergieträger:
GAS
Energieeffizienzklasse:
H
Jahrgang:
2014
Gebäudeart:
wohn

Verwaltung

Ihr Ansprechpartner

Herr
Markus Meyer
Diese E-Mail-Adresse ist vor Spambots geschützt! Zur Anzeige muss JavaScript eingeschaltet sein.
00493034662022
00491739469390
Berlin-Color Immobilien Meyer GmbH
Mühlweg 4D
15913 Alt-Zauche
E-Mail (zentral)
Diese E-Mail-Adresse ist vor Spambots geschützt! Zur Anzeige muss JavaScript eingeschaltet sein.
Fax
00493034662024

Kontaktformular

Objektbeschreibung

Entdecken Sie Ihr neues Zuhause in Zossen: ein charmantes Zweifamilienhaus, das sowohl durch seine historische Architektur als auch durch seine moderne Pflege besticht. Dieses massiv gebaute Haus aus dem Jahr 1900 bietet Ihnen auf ca. 120 m² Wohnfläche viel Raum zur Entfaltung. Der Dachboden bietet Potenzial für noch mehr Wohnfläche an.
Das Objet eignet sich hervorragend für große Familien, Mehrgenerationen oder für Wohnen und Arbeiten.

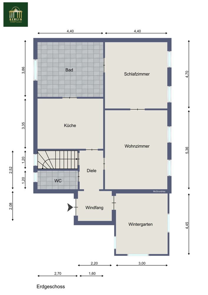
Mit sieben großzügigen Zimmern und vier Badezimmern eignet es sich ideal für Familien, die Platz und Komfort suchen. Die zusätzliche Nutzfläche von etwa 120 m² wird derzeit als Pension genutzt und bietet vielfältige Möglichkeiten für individuelle Nutzung oder zusätzliche Einnahmen.

Das ca. 1.805 m² große Grundstück bietet Ihnen reichlich Freiraum zum Entspannen und Gestalten. Das gepflegte Anwesen erstreckt sich über zwei Etagen und ist vollständig unterkellert, was zusätzlichen Stauraum bietet.

Ein praktisches Gäste-WC rundet das Angebot ab. Sichern Sie sich dieses einzigartige Haus, das harmonisch Tradition mit modernem Wohnkomfort verbindet.

Lage

Das Zweifamilienhaus befindet sich in Zossen in angenehm gewachsener Wohnlage mit kurzen Wegen in den Ortskern. Das Zentrum ist in etwa 1,3 km erreichbar und bietet eine gute Nahversorgung sowie verschiedene Dienstleistungen für den täglichen Bedarf.

Familien profitieren von der praxisnahen Infrastruktur: Ein Kindergarten liegt in ca. 0,8 km Entfernung, die Grundschule in ca. 0,9 km. Weiterführende Schulen sind ebenfalls gut angebunden – eine Realschule erreichen Sie nach rund 6,3 km, ein Gymnasium nach etwa 14 km.

Auch die überregionale Anbindung ist komfortabel: Die nächste Autobahnauffahrt befindet sich in ungefähr 15 km Entfernung, wodurch sich Pendelstrecken und Ausflüge in die umliegenden Regionen effizient gestalten lassen. Insgesamt überzeugt die Lage durch die Kombination aus ruhigem Wohnen und guter Erreichbarkeit wichtiger Einrichtungen.